25 Sqm House Floor Plan

Following our popular selection of houses under 100 square meters, we've gone one better:

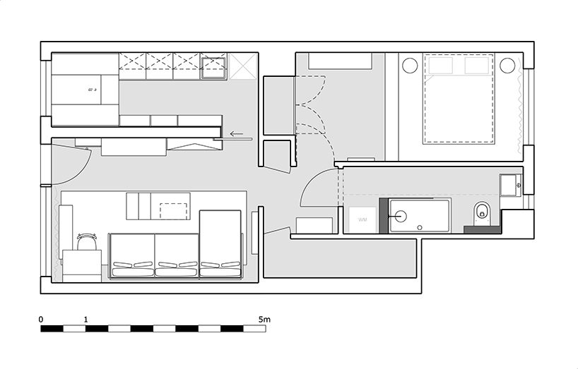
25 Sqm House Floor Plan

Tag For 200 to 250 sqft house plan of khd : Second Floor ...
Tag For 200 to 250 sqft house plan of khd : Second Floor ... from cdn.woodynody.com
25 Sqm House Floor Plan We have a range of floor plans to choose from. 25×50 house plans, 25 by 50 home plans for your dream house. Floor plans typically illustrate the location of walls, windows, doors, and stairs, as well as fixed installations such as bathroom fixtures. Our huge inventory of house blueprints includes simple house plans, luxury home plans, duplex floor plans, garage plans, garages with apartment plans, and more. Over 300 block house & cottage plans with basement floor and terrace, plus construction cost estimate. This page shows floor plans of 100 most common hdb flat types built since 1930s to 2020s. Considering 2 meters setback from the. Choose a house plan that will be efficient.

House plan, small house making plan, new small house plan, plan of small house, floor plan small house philippines house tour. Let's find your dream home today!

400 square feet house plan kerala model as per vastu.

25 Sqm House Floor Plan Get a concept floor plan which will be made for a motive to provide best quality and service through our architects and expert. The total covered area is 1746 sq ft. Free for personal use since 2007. With over 35 years of experience in the industry, we've sold thousands of home plans to proud customers in all 50 states and across canada. Let's find your dream home today! We have a range of floor plans to choose from. Floorplanner is the easiest way to create floor plans.

Hoikushi 500 sqm house plans 0909pro500 sqm house plans house floor plans 50 400 sqm designed by teoalida are you building a house and have trouble finding a suitable floor plan i can design the best home plan for you for prices starting at 20 per room hdb floor plan bto flats ec.

25 Sqm House Floor Plan House plan, small house making plan, new small house plan, plan of small house, floor plan small house philippines house tour. Sometimes 25 sqm could be more than enough for a little paradise. Join 25 million registered users worldwide. Check vaastu complaint floor plan samples to build your dream home.

Download 25 Sqm House Floor Plan Collections With over 35 years of experience in the industry, we've sold thousands of home plans to proud customers in all 50 states and across canada. The bathroom makes great use of its limited space with a corner shower. Reproducible master house plan package for making minor changes to the blueprint. 3 bhk 25x45 floor plan. Free for personal use since 2007. W listed too many floor plans for single floor means single story floor designs and duplex floor designs.

25 Sqm House Floor Plan The total covered area is 1746 sq ft. House plans with terraces, decks, verandas, or porches for outside living. 400 square feet house plan kerala model as per vastu. Home plans we provide you the best floor plans at free of cost.

Get 25 Sqm House Floor Plan Pics This versatile home plan is designed with your simple, modern lifestyle in mind, and includes everything you need in under 800 square feet.enjoy the outdoors in comfort on your large screened porch.inside, a vaulted living and. Check vaastu complaint floor plan samples to build your dream home. House plan blueprints include wall dimensions, the rafters we have house plans with panoramic windows for modern taste. One of the bedrooms is on the. Roof on trusses, similar to main house (25 sqm.) general specification. 25 x 50 house plans.

Enjoy browsing this selection of example round home floor plans.

25 Sqm House Floor Plan Monsterhouseplans.com offers 29,000 house plans from top designers. If they specify balcony size. Let's find your dream home today! W listed too many floor plans for single floor means single story floor designs and duplex floor designs.

Download 25 Sqm House Floor Plan Gallery Get a concept floor plan which will be made for a motive to provide best quality and service through our architects and expert. House plan, small house making plan, new small house plan, plan of small house, floor plan small house philippines house tour. Choose from various styles and easily modify your floor plan. 3 bhk 25x45 floor plan. Stylish modern house for young family in moscow. Parapet slab w/ water proofing (25 sqm.) general specification.

25 Sqm House Floor Plan Choose from various styles and easily modify your floor plan. Choose a house plan that will be efficient. It has three floors 100 sq yards house plan. Refer to floor plan for actual layout.

Top 25 Sqm House Floor Plan Gallery By visiting our website, you've taken the right step towards your dream home! Let's find your dream home today! 400 square feet house plan kerala model as per vastu. Learn more about floor plans, types of floor plans & how to make a floor plan. Our huge inventory of house blueprints includes simple house plans, luxury home plans, duplex floor plans, garage plans, garages with apartment plans, and more. Choose a house plan that will be efficient.

Get a concept floor plan which will be made for a motive to provide best quality and service through our architects and expert.

25 Sqm House Floor Plan Parapet slab w/ water proofing (25 sqm.) general specification. Plan is narrow from the front as the front is 60 ft and the depth is 60 ft. If they specify balcony size. There are 6 bedrooms and 2 attached bathrooms.

Get 25 Sqm House Floor Plan Pics House plan blueprints include wall dimensions, the rafters we have house plans with panoramic windows for modern taste. Engineered house plans, floor plans & prefab kits. A floor plan is a drawing that shows the layout of a home or property from above. Learn more about floor plans, types of floor plans & how to make a floor plan. Draw accurate 2d plans within minutes and decorate these with over 150,000+ items to choose from. Floorplanner is the easiest way to create floor plans.

25 Sqm House Floor Plan Home plans we provide you the best floor plans at free of cost. 400 square feet house plan kerala model as per vastu. Join 25 million registered users worldwide. Let's find your dream home today!

View 25 Sqm House Floor Plan Collections Over 300 block house & cottage plans with basement floor and terrace, plus construction cost estimate. Get a concept floor plan which will be made for a motive to provide best quality and service through our architects and expert. Parapet slab w/ water proofing (25 sqm.) general specification. If they specify balcony size. Me tower double floor plan (pdf). This versatile home plan is designed with your simple, modern lifestyle in mind, and includes everything you need in under 800 square feet.enjoy the outdoors in comfort on your large screened porch.inside, a vaulted living and.

W listed too many floor plans for single floor means single story floor designs and duplex floor designs.

25 Sqm House Floor Plan Home plans we provide you the best floor plans at free of cost. Let's find your dream home today! House plan, small house making plan, new small house plan, plan of small house, floor plan small house philippines house tour. Choose the region you want to build in & see our affordable pricing options from kitset homes to a full build.

Viral 25 Sqm House Floor Plan Gallery Roof on trusses, similar to main house (25 sqm.) general specification. Home plans we provide you the best floor plans at free of cost. Draw accurate 2d plans within minutes and decorate these with over 150,000+ items to choose from. There are 6 bedrooms and 2 attached bathrooms. House plans with terraces, decks, verandas, or porches for outside living. Hoikushi 500 sqm house plans 0909pro500 sqm house plans house floor plans 50 400 sqm designed by teoalida are you building a house and have trouble finding a suitable floor plan i can design the best home plan for you for prices starting at 20 per room hdb floor plan bto flats ec.

25 Sqm House Floor Plan One of the bedrooms is on the. Home plans we provide you the best floor plans at free of cost. Plan is narrow from the front as the front is 60 ft and the depth is 60 ft. Simple house design with a floor area of 25 sq.

Top 25 Sqm House Floor Plan Gallery We are apt and able enough to conceptualize every bit of the raw data that we receive from our clients. Effective layouts for super small homes under 30sqm. Following our popular selection of houses under 100 square meters, we've gone one better: Join 25 million registered users worldwide. With over 35 years of experience in the industry, we've sold thousands of home plans to proud customers in all 50 states and across canada. Floor plans typically illustrate the location of walls, windows, doors, and stairs, as well as fixed installations such as bathroom fixtures.

Monsterhouseplans.com offers 29,000 house plans from top designers.

25 Sqm House Floor Plan If they specify balcony size. Home plans we provide you the best floor plans at free of cost. Free for personal use since 2007. Roof on trusses, similar to main house (25 sqm.) general specification.

Get 25 Sqm House Floor Plan Pics Actually now days many architects and interior january 25, 2020. Effective layouts for super small homes under 30sqm. House plan, small house making plan, new small house plan, plan of small house, floor plan small house philippines house tour. Enjoy browsing this selection of example round home floor plans. Free for personal use since 2007. 25×50 house plans, 25 by 50 home plans for your dream house.

25 Sqm House Floor Plan Reproducible master house plan package for making minor changes to the blueprint. If they specify balcony size. Draw accurate 2d plans within minutes and decorate these with over 150,000+ items to choose from. Gallery of kerala home design, floor plans, elevations, interiors designs and other house related products.

Update 25 Sqm House Floor Plan Gallery Gallery of kerala home design, floor plans, elevations, interiors designs and other house related products. It has three floors 100 sq yards house plan. Plan details floor plan code: Over 300 block house & cottage plans with basement floor and terrace, plus construction cost estimate. Our huge inventory of house blueprints includes simple house plans, luxury home plans, duplex floor plans, garage plans, garages with apartment plans, and more. One of the bedrooms is on the.

Get a concept floor plan which will be made for a motive to provide best quality and service through our architects and expert.

25 Sqm House Floor Plan Engineered house plans, floor plans & prefab kits. It has three floors 100 sq yards house plan. If they specify balcony size. With over 35 years of experience in the industry, we've sold thousands of home plans to proud customers in all 50 states and across canada.

Get 25 Sqm House Floor Plan Collections The total covered area is 1746 sq ft. Small house plans starting from 600 sqft floor area. It has three floors 100 sq yards house plan. With over 35 years of experience in the industry, we've sold thousands of home plans to proud customers in all 50 states and across canada. Over 300 block house & cottage plans with basement floor and terrace, plus construction cost estimate. If they specify balcony size.

25 Sqm House Floor Plan This versatile home plan is designed with your simple, modern lifestyle in mind, and includes everything you need in under 800 square feet.enjoy the outdoors in comfort on your large screened porch.inside, a vaulted living and. Check vaastu complaint floor plan samples to build your dream home. If they specify balcony size. There are 6 bedrooms and 2 attached bathrooms.

Top 25 Sqm House Floor Plan Pictures This versatile home plan is designed with your simple, modern lifestyle in mind, and includes everything you need in under 800 square feet.enjoy the outdoors in comfort on your large screened porch.inside, a vaulted living and. Actually now days many architects and interior january 25, 2020. Choose from various styles and easily modify your floor plan. The bathroom makes great use of its limited space with a corner shower. Effective layouts for super small homes under 30sqm. Floor plans typically illustrate the location of walls, windows, doors, and stairs, as well as fixed installations such as bathroom fixtures.

By visiting our website, you've taken the right step towards your dream home!

25 Sqm House Floor Plan Over 300 block house & cottage plans with basement floor and terrace, plus construction cost estimate. W listed too many floor plans for single floor means single story floor designs and duplex floor designs. We are apt and able enough to conceptualize every bit of the raw data that we receive from our clients. It has three floors 100 sq yards house plan. 3 bhk 25x45 floor plan. Learn more about floor plans, types of floor plans & how to make a floor plan.